| Zápachová uzávera vodná | 50 mm |
Detaily produktu
- Pre odvodnenie veľkých priemyslových priestorov a iných komerčných prevádzok vo vnútri budov, napr. v chemickom a potravinárskom priemysle
- Pre odvodnenie s menším prietokom vody
- Vpusť z nerezovej ocele (zušľachtenie materiálu morením a pasiváciou, elektrochemické preleštenie), tento proces garantuje, že si nerezová oceľ aj po niekoľkých rokoch uchová svoje vlastnosti a spoľahlivú funkciu
- Pevné ukotvenie v betóne pomocou jednoducho nastaviteľných nôh a bočných kotiev
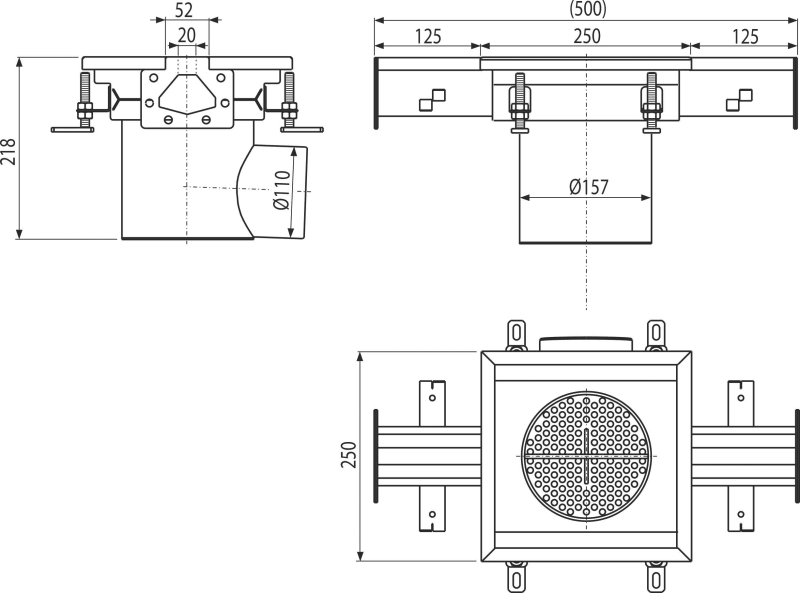
- Nastaviteľná výška v rozmedzí 85–125 mm
- Použité tesnenie zaisťuje úplne vodotesný spoj
- Jednoduché čistenie a údržba
- Materiál vpuste: nerezová oceľ 1,5 mm, DIN 1.4404
- EN 1253-1
| Množstvo (balenie) | 1 ks |
| Množstvo (paleta) | - ks |
| Rozmer (kus) | 500×250×218 mm |
| Hmotnosť (kus) | 5,1217 kg |
| Hmotnosť (balenie) | 5,1217 kg |
| Hmotnosť (paleta) | - kg |
- Vpusť
- Tesnenie 2 ks
- Nastaviteľné nohy 4 ks
- Sitko na nečistoty
- Zápachová uzávera
- Fixačný materiál