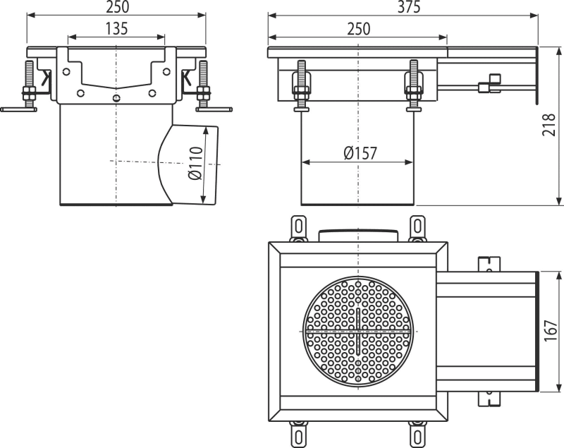
Priemyselná krabicová vpusť koncová 250×250-135, nerez AISI 316L

APR6-1321-135-P

Zápachová uzávera vodná50 mm
  • Pre odvodnenie veľkých priemyslových priestorov a iných komerčných prevádzok vo vnútri budov, napr. v chemickom a potravinárskom priemysle
  • Pre odvod väčšieho množstva vody, vhodné aj na dlhšie vzdialenosti
  • Vpusť z nerezovej ocele (zušľachtenie materiálu morením a pasiváciou), tento proces garantuje, že si nerezová oceľ aj po niekoľkých rokoch uchová svoje vlastnosti a spoľahlivú funkciu
  • Pevné ukotvenie v betóne pomocou jednoducho nastaviteľných nôh a bočných kotiev
  • Vysoký prietok
  • Nastaviteľná výška v rozmedzí 80–115 mm
  • Použité tesnenie zaisťuje úplne vodotesný spoj
  • Materiál vpuste: nerezová oceľ 1,5 mm, DIN 1.4404
  • EN 1253-1
Množstvo (balenie) 1 ks
Množstvo (paleta) - ks
Rozmer (kus) 250×375×218 mm
Rozmer (balenie) 250×375×218 mm
Hmotnosť (kus) 4,9745 kg
Hmotnosť (balenie) 4,9745 kg
Hmotnosť (paleta) - kg
  • Vpusť
  • Tesnenie 1 ks
  • Nastaviteľné nohy 4 ks
  • Sitko na nečistoty
  • Zápachová uzávera
  • Fixačný materiál
Kód výrobkuEANTechnický list
APR6-1321-135-P8595580574529Technický list